Objekto aprašymas
Hange kvartali edasiseks arendamiseks linnaehitusliku analüüsi koostamiseks. Tähtaeg 12. mai.
2020 gegužės 06
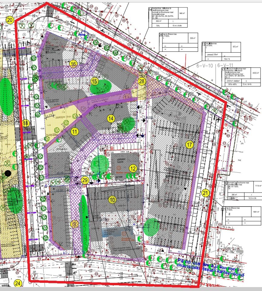
Pärnu Linnavalitsuse planeerimisosakonnale on laekunud erinevaid taotlusi kehtiva Ringi tn, Aia tn ja politseimaja vahelise maa-ala ning Aida tänava detailplaneeringu täpsustamiseks ja üleplaneerimiseks. Päevakorras on hoonestuse kõrguse tõstmine täna hoonestamata kinnistutel (nt Lai 15a, Aia tn 2a). Sellest tulenevalt on tekkinud vajadus vaadelda Aia, Laia ja Pika tänavate ning Pargi tn pikenduse vahele jäävat kvartalit terviklikult ja koostada selle edasiseks arendamiseks linnaehituslik analüüs. Linnaehitusliku analüüsi eesmärk on tagada vaatluse all oleva kvartali mahuline terviklahendus, mis harmoneeruks ümbritseva linnaruumiga.
Analüüsis anda:
1. Kavandatavate hoonemahtude mastaabid (paiknemine, kõrgus, üldised arhitektuursed parameetrid);
2. Kruntimiskava, vajadusel teha ettepanekuid krundipiiride muutmiseks;
3. Liikluslahendus ja parkimine;
4. Analüüs hoonestusest tingitud varjude liikumisele avalikus linnaruumis. Pakkuda hoonestuse parim mahuline lahendus, mis tagaks ümbruskonna head insolatsioonitingimused nii naaberkinnistute hoonestusele kui ka avalikule linnaruumile.
Hinnapakkumisi linnaehitusliku analüüsi koostamiseks oodatakse hiljemalt 12.05.2020.
Analüüsis anda:
1. Kavandatavate hoonemahtude mastaabid (paiknemine, kõrgus, üldised arhitektuursed parameetrid);
2. Kruntimiskava, vajadusel teha ettepanekuid krundipiiride muutmiseks;
3. Liikluslahendus ja parkimine;
4. Analüüs hoonestusest tingitud varjude liikumisele avalikus linnaruumis. Pakkuda hoonestuse parim mahuline lahendus, mis tagaks ümbruskonna head insolatsioonitingimused nii naaberkinnistute hoonestusele kui ka avalikule linnaruumile.
Hinnapakkumisi linnaehitusliku analüüsi koostamiseks oodatakse hiljemalt 12.05.2020.
Firmos ir jų vaidmenys
| Kontaktai | |||||
|---|---|---|---|---|---|
Užsakovas |
|||||
|
Pärnu Linnavalitsus , Tõstamaa vald
|
|
linnavalitsus@parnu.ee | |||
Darbai objekte
- Ekspertizė analüüs
Charakteristikos
| Pasiūlymai iki | 12. mai 2020 |


