Objekto aprašymas
Hange kahe hooldekodu ruumide remondiks. Tähtaeg 14. oktoober.
2020 spalio 03
Tapa Vallavalitsuse hanke objektiks on Tapa vallale kuuluvate hooldekodude ruumide remont vastavalt alltoodud tööde kirjeldusele ning mahutabelile/maksumuse tabelile:
I Tapa Hooldekodu (Kesk 9 Tapa linn) köögi ja ettevalmistusruumi remont.
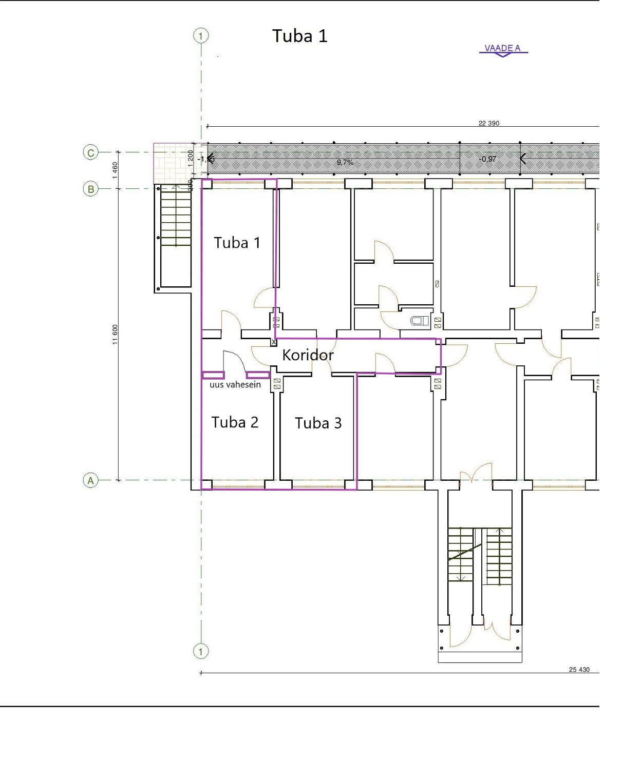
II Sääse Hooldekodu (Sääse tn 4-1/2, Sääse alevik) ruumide remont.
Tööde teostamise algusaeg on 11.jaanuar 2021, tööde teostamise aeg on 3 kuud.
Pakkujal on kohustuslik enne pakkumuse esitamist tutvuda olemasoleva olukorraga. Kui pakkuja ei ole seda teinud, jätab hankija tema pakkumuse läbi vaatamata.
Objektidega tutvumiseks võtta ühendust vallavara haldusspetsialistiga Alo Leek, tel 59151582, alo.leek@tapa.ee
Pakkumuste esitamise tähtaeg 14.10.2020 kell 11:00
I Tapa Hooldekodu (Kesk 9 Tapa linn) köögi ja ettevalmistusruumi remont.
II Sääse Hooldekodu (Sääse tn 4-1/2, Sääse alevik) ruumide remont.
Tööde teostamise algusaeg on 11.jaanuar 2021, tööde teostamise aeg on 3 kuud.
Pakkujal on kohustuslik enne pakkumuse esitamist tutvuda olemasoleva olukorraga. Kui pakkuja ei ole seda teinud, jätab hankija tema pakkumuse läbi vaatamata.
Objektidega tutvumiseks võtta ühendust vallavara haldusspetsialistiga Alo Leek, tel 59151582, alo.leek@tapa.ee
Pakkumuste esitamise tähtaeg 14.10.2020 kell 11:00
Firmos ir jų vaidmenys
| Kontaktai | |||||
|---|---|---|---|---|---|
Užsakovas |
|||||
|
Tapa Vallavalitsus , Tapa vald
|
|
vallavalitsus@tapa.ee | |||
Darbai objekte
- Remontas
- Apdailos darbai
Charakteristikos
| Pasiūlymai iki | 14.10.2020 |
| Statybų pradžia | 11.01.2021 |
| Statybų trukmė | 3 kuud |


